| 情報更新日 | |
| 物件種目 | 売買 |
| 物件ID | c1772523816 |
| 所在地 | 山口県周南市政所三丁目 |
| 坪単価 | |
| 共益費 | |
| 礼金 | |
| 保証金 | |
| 敷金 | |
| 学校区 | |
| 交通 | JR山陽本線 「新南陽」駅 徒歩約9分 |
| 道路 | 北側幅員6.4m 42条1項1号 |
| 敷地面積 | |
| 建物面積 | |
| 専有面積 | |
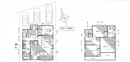
| 構造 | 木造 |
| 間取 | |
| 設備 | 下水道 上水道 排水 都市ガス 電気 水洗 給湯 シャワー 3口IHコンロ |
| 都市計画 | 市街化区域 |
| 用途地域 | |
| 建蔽率 | |
| 容積率 | |
| 地目 | 宅地 |
| 建物築年月 | |
| 防火指定 | |
| 水道 | 公営 |
| ガス | 都市ガス |
| トイレ | 水洗 |
| 設備 | |
| 現況 | |
| 引渡 | |
| 地勢 | |
| 総戸数 | |
| 土地権利 | |
| 取引態様 | 仲介 |
| 管理形態 | |
| 管理会社 | |
| 管理費 | |
| 修繕積立金 | |
| 駐車場費 | |
| 雑費 | |
| 町内会費 | |
| 鍵交換代 | |
| 室内清掃費 | |
| その他一時金 | |
| 階建・所在階 | |
|
バルコニー・ 専用庭 |
|
| 契約期間 | |
| 更新料 | 20.000円他/2年 |
| フリーレント | |
| 定期借家 | |
| 保険 | |
| 賃貸保証 | |
| 条件等 | |
| インスペクション | |
| 性能評価 | |
|
リフォーム・ リノベーション |
|
| 特記 |
| その他負担金 | |
| 備考 | |
| コメント | 2026年4月完成予定 |
| アクセス |
(有)不動産管理
